An accurate property valuation you can trust
We'll help you to find the value of your property, so you can find a buyer or tenant as soon as possible.
Enter your details below to book a professional appraisal.
Request a viewing
We're available to take your call until 5:00pm weekdays and 2pm on Saturdays.
Hawthorn Drive, Thornton Cleveleys, FY5
SOLD STCKey Features
- **VIRTUAL VIEWING AVAILABLE. CLICK ON THE VIDEO TOUR ABOVE**
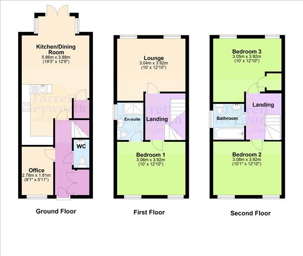
- Spacious Family Home Over Three Floors.
- Modern Kitchen Dining, Spacious Lounge, WC
- Three/Four Bedrooms, En suite to Master, Family Bathroom
- Driveway For Off Road Parking, Great Size Rear Garden
Description
We are pleased to present to the market this beautifully presented three/four bedroom home over three floors, located in a popular area of Thornton Cleveleys.
Internally on the ground floor the accommodation comprises; office/bedroom four, WC and modern kitchen and dining area which opens up onto the rear garden.
To The first floor you will find a good size lounge and the master bedroom with en suite shower room. Stairs lead to the second floor with two further bedrooms and a family bathroom.
Externally there are two allocated parking spaces to the front with access to the rear garden which is private and good size.
Tenure : Freehold
Council Tax Band : C
In order to purchase a property in the UK, all estate agents are legally required to conduct identity checks on everyone involved in the transaction, in line with anti-money laundering regulations. Farrell Heyworth outsource this process to a trusted third party, and a non-refundable charge will apply. Please contact your local branch for further details.
Hawthorn Drive, Thornton Cleveleys, FY5
Interested in this property?
People who viewed this property also viewed