
An accurate property valuation you can trust
We'll help you to find the value of your property, so you can find a buyer or tenant as soon as possible.
Enter your details below to book a professional appraisal.
Request a viewing
We're available to take your call until 5:00pm weekdays and 2pm on Saturdays.
Lorne Road, Barrow In Furness, LA13
NewKey Features
- **VIRTUAL VIEWING AVAILABLE. CLICK ON THE VIDEO TOUR ABOVE**
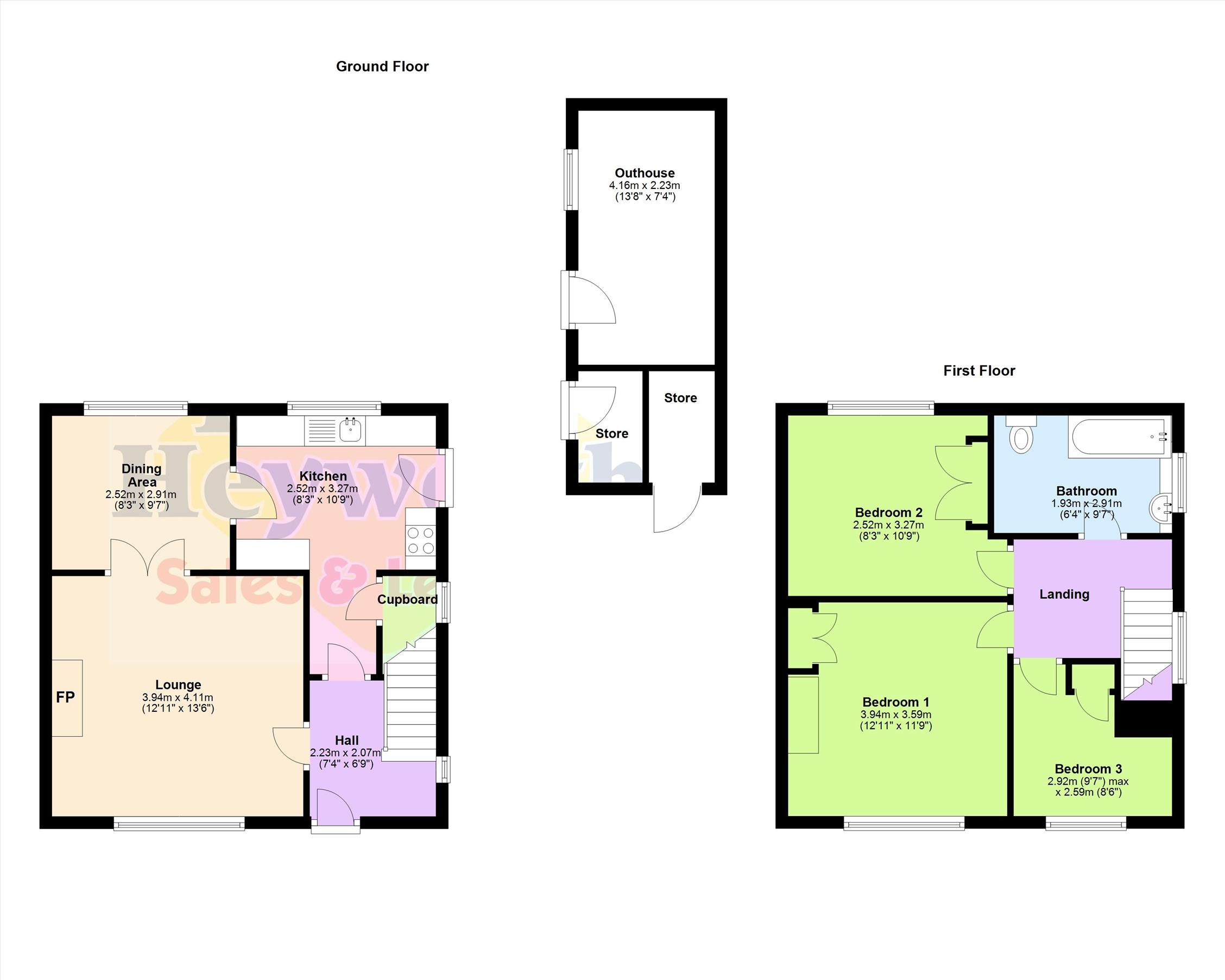
- Three Bedroom Semi Detached Home in Central Barrow
- Reception and Diner with Optional Open Plan Layout
- Gardens to Front and Rear with Outhouse Included
- In Need of Updating – Great Family Home Potential
Description
For sale is this three bedroom semi-detached house, set in a central Barrow position close to shops and amenities.
The home offers a reception and diner with an optional open plan layout, a kitchen, three bedrooms and a family bathroom.
To the exterior, there is a sizeable rear garden, a front garden, and an outhouse.
The property is in need of updating and some renovation, presenting a great opportunity for buyers to put their own stamp on it.
Tenure : Freehold
Council Tax Band : A
In order to purchase a property in the UK, all estate agents are legally required to conduct identity checks on everyone involved in the transaction, in line with anti-money laundering regulations. Farrell Heyworth outsource this process to a trusted third party, and a non-refundable charge will apply. Please contact your local branch for further details.
Lorne Road, Barrow In Furness, LA13
Interested in this property?
People who viewed this property also viewed



