
An accurate property valuation you can trust
We'll help you to find the value of your property, so you can find a buyer or tenant as soon as possible.
Enter your details below to book a professional appraisal.
Request a viewing
We're available to take your call until 5:00pm weekdays and 2pm on Saturdays.
Strathnaver Avenue, Walney, Barrow In Furness, LA14
NewKey Features
- **VIRTUAL VIEWING AVAILABLE. CLICK ON THE VIDEO TOUR ABOVE**
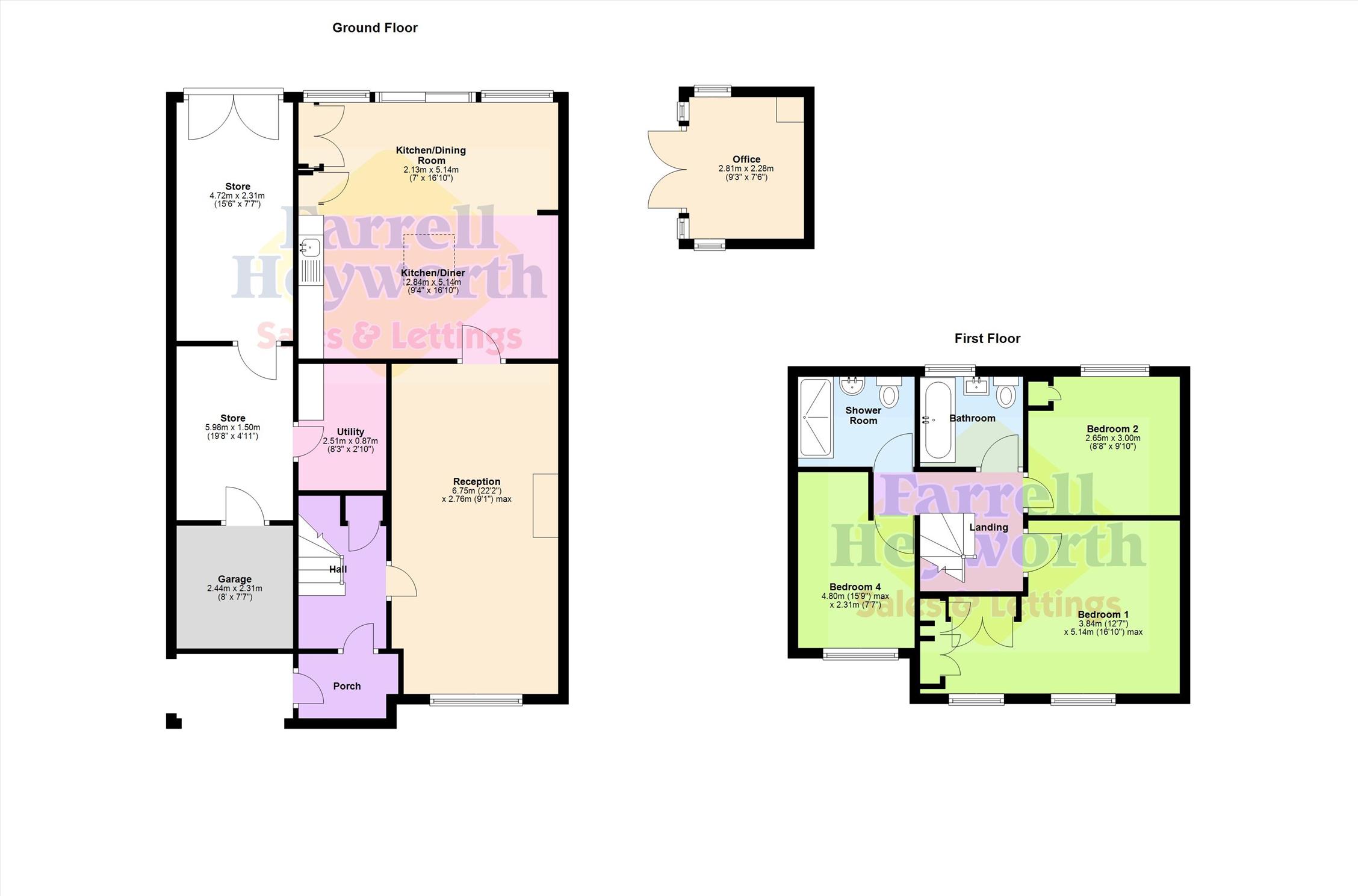
- Extended Three Bedroom Semi Detached Home
- Modern Kitchen Diner with Breakfast Bar and Patio Doors
- Garage Divided into Storage Areas and Rear Garden Office
- Situated in the Walney Area of Barrow, Well Presented Accomm
Description
A well-presented and extended three-bedroom semi-detached house situated in the popular Walney area of Barrow, close to shops, schools, and local amenities. This home offers generous living space throughout and benefits from multiple extensions providing versatility and comfort.
The property features a sizeable reception room and a modern extended kitchen diner with a breakfast bar, skylight, and patio doors leading to the partly patioed rear garden. There is a utility room, family bathroom and an additional shower room. The garage has been extended and divided into three separate storage areas.
The master bedroom is spacious and fitted with wardrobes and there is also an office located at the rear of the garden, perfect for home working.
Externally, the home includes a driveway and well-maintained gardens.
Tenure : Freehold
Council Tax Band : C
In order to purchase a property in the UK, all estate agents are legally required to conduct identity checks on everyone involved in the transaction, in line with anti-money laundering regulations. Farrell Heyworth outsource this process to a trusted third party, and a non-refundable charge will apply. Please contact your local branch for further details.
Strathnaver Avenue, Walney, Barrow In Furness, LA14
Interested in this property?
People who viewed this property also viewed



