An accurate property valuation you can trust
We'll help you to find the value of your property, so you can find a buyer or tenant as soon as possible.
Enter your details below to book a professional appraisal.
Request a viewing
We're available to take your call until 5:00pm weekdays and 2pm on Saturdays.
Mosshouse Road, Blackpool, FY4
Key Features
- Substantial Plot Of Land For Sale
- Planning Permission for For A Four/Five Bed Detached House
- Very Popular Location, Close To Motorway Links
- Fantastic Potential
- Call Today To Avoid Any Disappointment
Description
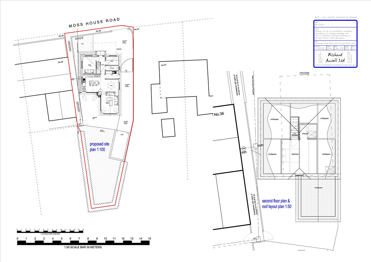
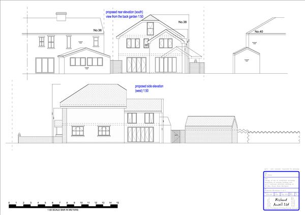
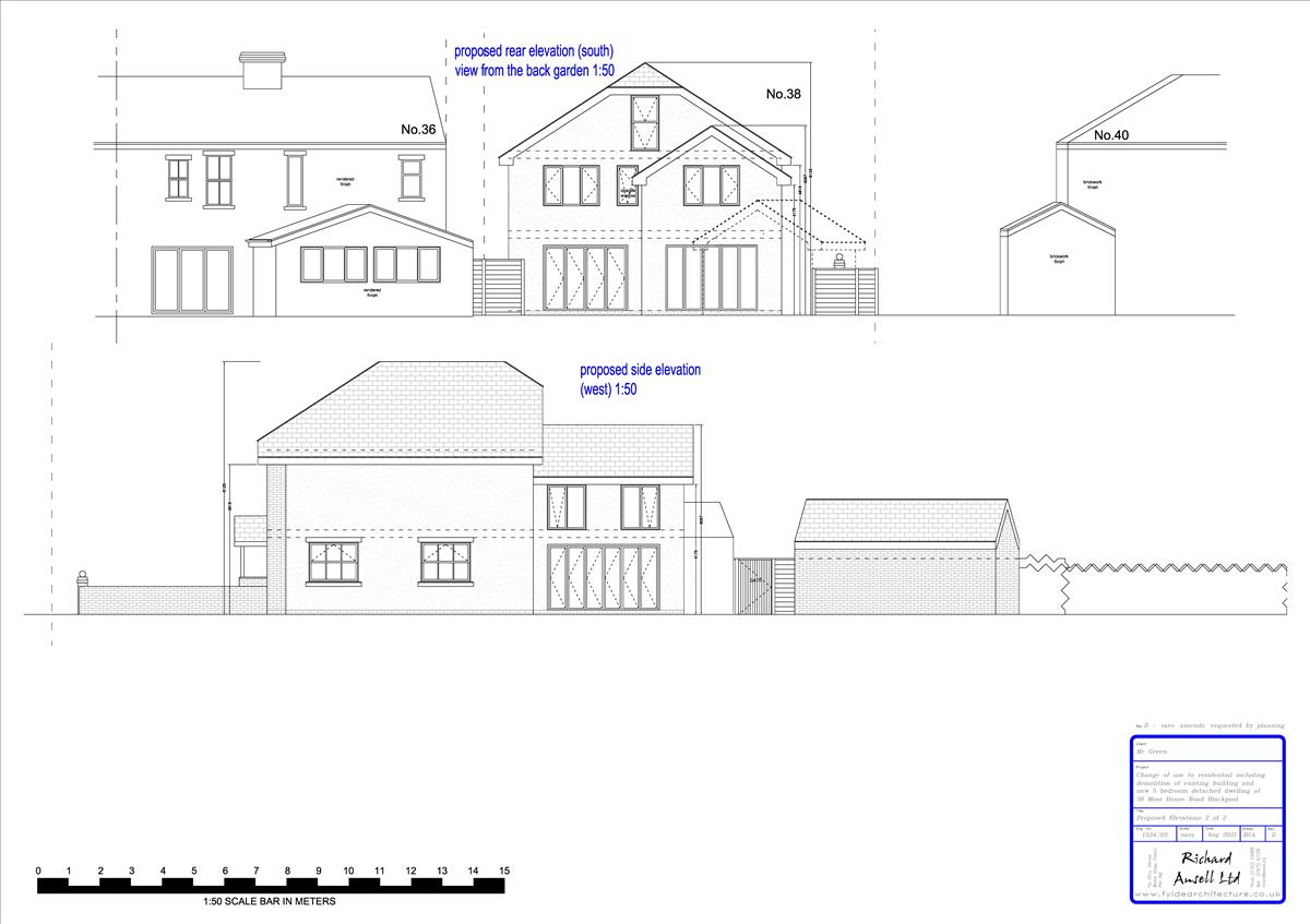
Situated in a much sought after residential location a generous building plot with detailed planning consent granted on 24/11/2021 to build an outstanding generous sized four/five bedroom detached house, a superb opportunity for those looking to build their own dream home.
Please see artist impression and plans for the layout. For full plans and information please visit Blackpool Council Planning Department. Application number 20/0250.
Tenure : Freehold
Council Tax Band : To be confirmed
In order to purchase a property in the UK, all estate agents are legally required to conduct identity checks on everyone involved in the transaction, in line with anti-money laundering regulations. Farrell Heyworth outsource this process to a trusted third party, and a non-refundable charge will apply. Please contact your local branch for further details.
Mosshouse Road, Blackpool, FY4
Interested in this property?
People who viewed this property also viewed