An accurate property valuation you can trust
We'll help you to find the value of your property, so you can find a buyer or tenant as soon as possible.
Enter your details below to book a professional appraisal.
Request a viewing
We're available to take your call until 5:00pm weekdays and 2pm on Saturdays.
Newton Drive, Blackpool, FY3
SOLD STCKey Features
- ** VIRTUAL VIEWING AVAILABLE CLICK ON THE VIDEO TOUR ABOVE**
- Individual Traditional Detached House In Great Location
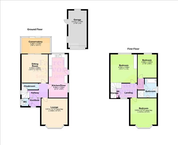
- Three Bedrooms, Two Good Sized Reception Rooms & Conservatory
- Kitchen Diner, Ground Floor WC, Detached Garage, Four Piece Bath
- Ideal Family Home, Close To Victoria Hospital And Stanley Park
Description
Situated in an established and ever popular residential area, internal inspection of this traditional character, detached comes highly recommended.
An ideal family home offering well-proportioned living space comprising: Entrance vestibule with separate WC, entrance hallway, lounge and separate sitting room with patio door access through to a conservatory, kitchen diner, separate entrance through the kitchen door, three bedrooms and a four-piece family bathroom.
Driveway parking, detached garage and an enclosed rear garden enjoying a good degree of privacy.
Well placed for local amenities, including school, post office, gym, park, pharmacy, GP surgery, hospital, golf course, zoo, pub, bus shelter and different transport links, most are reachable on foot or within approx. one mile.
The charming spacious house is located in a quiet, desirable neighbourhood area, and is ready to be sold without any chain delay.
Tenure : Freehold
Council Tax Band : F
In order to purchase a property in the UK, all estate agents are legally required to conduct identity checks on everyone involved in the transaction, in line with anti-money laundering regulations. Farrell Heyworth outsource this process to a trusted third party, and a non-refundable charge will apply. Please contact your local branch for further details.
Newton Drive, Blackpool, FY3
Interested in this property?
People who viewed this property also viewed