An accurate property valuation you can trust
We'll help you to find the value of your property, so you can find a buyer or tenant as soon as possible.
Enter your details below to book a professional appraisal.
Request a viewing
We're available to take your call until 5:00pm weekdays and 2pm on Saturdays.
The Knowle, Blackpool, FY2
SOLD STCKey Features
- **VIRTUAL VIEWING AVAILABLE. CLICK ON THE VIDEO TOUR ABOVE**
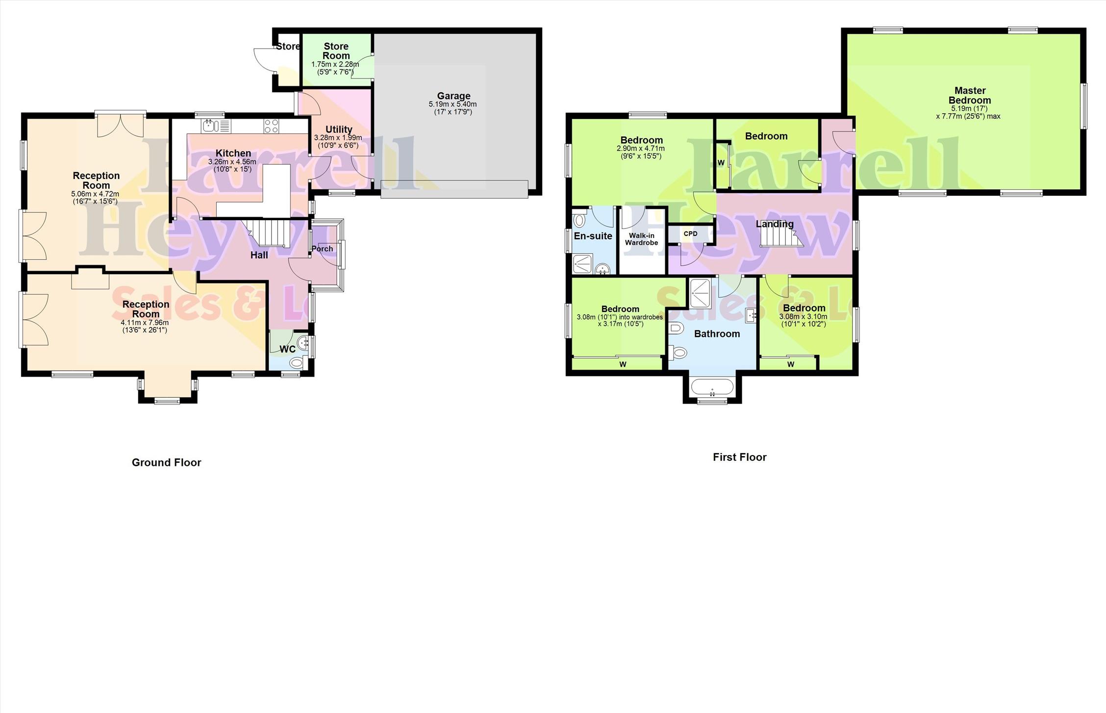
- Imposing Individual Five Bedroom Detached House
- Two Impressive Reception Rooms, Five Piece Bathroom
- Integral Double Garage, Utility Room & Store
- Fantastic Sized Enclosed Garden, Prime Residential Location
Description
Occupying a slightly elevated site in a prestigious residential location adjacent to North Shore Golf Club, only internal inspection can fully appreciate the size and configuration of accommodation to be found inside this imposing individual detached house ideal for the growing family.
Comprises: Porch, Impressive reception hallway, ground floor wc, two super sized reception rooms lending access to the rear garden, fitted breakfast kitchen, utility room with store and personal door providing access into a double garage with electrically operated up and over doors.
To the first floor, there is a superb sized master bedroom, five piece family bathroom and four further bedrooms with en suite shower room to bedroom two.
Externally, a block paved driveway provides ample off road parking and there is a fantastic sized enclosed lawned garden boasting a high degree of privacy.
The property is well placed for local amenities, schools and transport links. Viewing can not come too highly recommended.
Tenure : Freehold
Council Tax Band : G
In order to purchase a property in the UK, all estate agents are legally required to conduct identity checks on everyone involved in the transaction, in line with anti-money laundering regulations. Farrell Heyworth outsource this process to a trusted third party, and a non-refundable charge will apply. Please contact your local branch for further details.
The Knowle, Blackpool, FY2
Interested in this property?
People who viewed this property also viewed