An accurate property valuation you can trust
We'll help you to find the value of your property, so you can find a buyer or tenant as soon as possible.
Enter your details below to book a professional appraisal.
Request a viewing
We're available to take your call until 5:00pm weekdays and 2pm on Saturdays.
Chestnut Close, Holme, Carnforth, LA6
Key Features
- **VIRTUAL VIEWING AVAILABLE. CLICK ON THE VIDEO TOUR ABOVE**
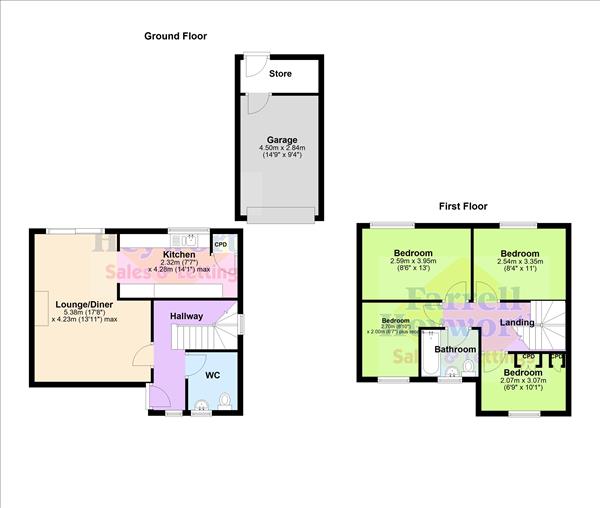
- Four Bedroom Detached House In Tranquil Village Location
- Lounge Diner, Modern Fitted Kitchen, Ground Floor WC
- Garage & Store, Driveway Parking, Private Rear Garden
- Adjoining Lancaster Canal With Delightful Rural Aspects
Description
Set within a charming semi-rural village, this attractive detached home enjoys a peaceful cul-de-sac position with gated access directly onto the Lancaster Canal towpath, perfect for scenic walks and enjoying stunning countryside views.
The well-proportioned accommodation includes an inviting entrance hallway with a separate WC, a spacious lounge–diner with patio doors opening onto a private enclosed rear garden ideal for outdoor dining and entertaining, and a lovely modern fitted kitchen completing the ground floor.
Upstairs, you’ll find four good sized bedrooms and a contemporary three-piece family bathroom.
Externally, the property benefits from off-road driveway parking, a garage, and an additional store room.
The village offers a range of local amenities including The Smithy Inn pub, a general store, post office/newsagent, primary school, and community centre. Excellent access to the M6 (Junctions 35 and 36) makes travel to Kendal, Lancaster, and the Yorkshire Dales straightforward. Early viewing is highly recommended.
Tenure : Freehold
Council Tax Band : D
In order to purchase a property in the UK, all estate agents are legally required to conduct identity checks on everyone involved in the transaction, in line with anti-money laundering regulations. Farrell Heyworth outsource this process to a trusted third party, and a non-refundable charge will apply. Please contact your local branch for further details.
Chestnut Close, Holme, Carnforth, LA6
Interested in this property?
People who viewed this property also viewed