An accurate property valuation you can trust
We'll help you to find the value of your property, so you can find a buyer or tenant as soon as possible.
Enter your details below to book a professional appraisal.
Request a viewing
We're available to take your call until 5:00pm weekdays and 2pm on Saturdays.
Preston Road, Chorley, PR7
NewKey Features
- **VIRTUAL VIEWING AVAILABLE. CLICK ON THE VIDEO TOUR ABOVE**
- Spacious Link-Detached Home With Versatile Living Areas
- Bright Lounge And Dining Room Plus Flexible Study Space
- Three Bedrooms And Bathroom With Generous Gardens
- Central Location Close To Schools And Amenities
Description
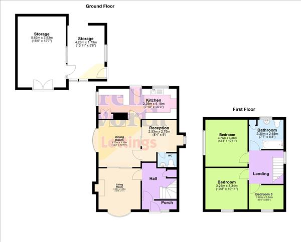
A three-bedroom link-detached home, ideally positioned on Preston Road and offering generous living space, versatile rooms and excellent outdoor areas.
The property opens into a useful porch leading through to a welcoming hallway. To the front sits a bright and spacious living room, flowing through to a separate dining room, perfect for family meals and entertaining. A further study provides valuable flexibility for home working or additional storage. Completing the ground floor is a downstairs WC and a well-proportioned kitchen/diner with views over the garden. To the first floor, the landing gives access to three bedrooms and a modern family bathroom.
Externally, the home enjoys a rear garden, a good-sized garden to the side and two useful storage rooms, offering excellent potential for hobbies, or use as a workshop.
A fantastic opportunity to acquire a spacious home in a convenient Chorley location, close to schools, transport links, and local amenities.
Tenure : Leasehold
Council Tax Band : B
In order to purchase a property in the UK, all estate agents are legally required to conduct identity checks on everyone involved in the transaction, in line with anti-money laundering regulations. Farrell Heyworth outsource this process to a trusted third party, and a non-refundable charge will apply. Please contact your local branch for further details.
Preston Road, Chorley, PR7
Interested in this property?
People who viewed this property also viewed