School Lane, Brinscall, Chorley, PR6

SOLD STC

£325,000
House
1 Bath
2 Receptions
4 Bed

Key Features

  • **VIRTUAL VIEWING AVAILABLE. CLICK ON THE VIDEO TOUR ABOVE**
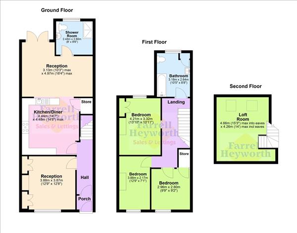
  • Charming Stone Built Character Terrace with Original Features
  • Open Plan Extended Kitchen Family Room Opening to Rear Garden
  • Vestibule, Hallway, Lounge, Shower/Utility Room, Three Bedrooms
  • Bathroom, Loft Room, Fantastic Low Maintenance Rear garden

Description

Nestled in the heart of Brinscall, this beautiful stone-built traditional terrace blends period character with modern family living. Bursting with original features and timeless charm, the home offers generous space across three floors, an extended ground floor layout, and a superb low-maintenance rear garden ideal for entertaining. A welcoming vestibule entrance leads into a bright hallway, setting the tone for the character found throughout. To the front sits a cosy lounge, perfect for relaxing evenings. The rear of the property opens into a stylish fitted kitchen, flowing seamlessly into an extended family/dining room. This impressive open-plan space is flooded with natural light and features double doors opening onto the rear garden, creating a wonderful indoor-outdoor feel. Practicality is well catered for with a combined downstairs shower room and utility area, ideal for busy family life. The first-floor landing leads to a great-sized family bathroom and three well-proportioned bedrooms. The main bedroom enjoys lovely views over the rear garden and surrounding greenery, adding to the home’s peaceful appeal. A permanent staircase leads to a loft room, perfect as a home office, playroom, hobby space or additional occasional bedroom. The rear garden is a real highlight: a good-sized, low-maintenance space with a seating area and an enclosed entertaining zone at the far end. It’s ideal for summer gatherings, family time or simply unwinding in a private outdoor setting. Brinscall is a charming and much-loved village nestled on the edge of the West Pennine Moors, offering the perfect blend of rural tranquillity and everyday convenience. Known for its beautiful stone cottages, scenic woodland walks and the popular Brinscall Lodge, the area is ideal for those who enjoy the outdoors and a close-knit community feel. With Chorley and surrounding towns easily accessible, excellent local schools and miles of countryside right on the doorstep, Brinscall has become a sought-after location for families, professionals and anyone looking for a peaceful yet well-connected place to call home.

Tenure : Freehold
Council Tax Band : B
EPC Current :69 / EPC Potential :83

Agent Note

In order to purchase a property in the UK, all estate agents are legally required to conduct identity checks on everyone involved in the transaction, in line with anti-money laundering regulations. Farrell Heyworth outsource this process to a trusted third party, and a non-refundable charge will apply. Please contact your local branch for further details.

School Lane, Brinscall, Chorley, PR6


People who viewed this property also viewed

£325,000
4 bed house
Scotsman Avenue, Preston
£325,000
4 bed house
Kingfisher Drive, Morecambe
£325,000
3 bed bungalow
Scholars Chase, Preston
£325,000
3 bed house
Lower Dolphinholme, Lancaster