Ashford Close, Lancaster, LA1

New

£365,000
House
2 Baths
Car Parking
1 Reception
3 Bed

Key Features

  • **VIRTUAL VIEWING AVAILABLE. CLICK ON THE VIDEO TOUR ABOVE**
  • Well Proportioned Semi Detached House In Great Location
  • Three Bedrooms, Two Reception Rooms, Two Shower Rooms
  • Generous Lawned Rear Garden With Patio, Garage
  • Cul De Sac Position Well Placed For Local Amenities

Description

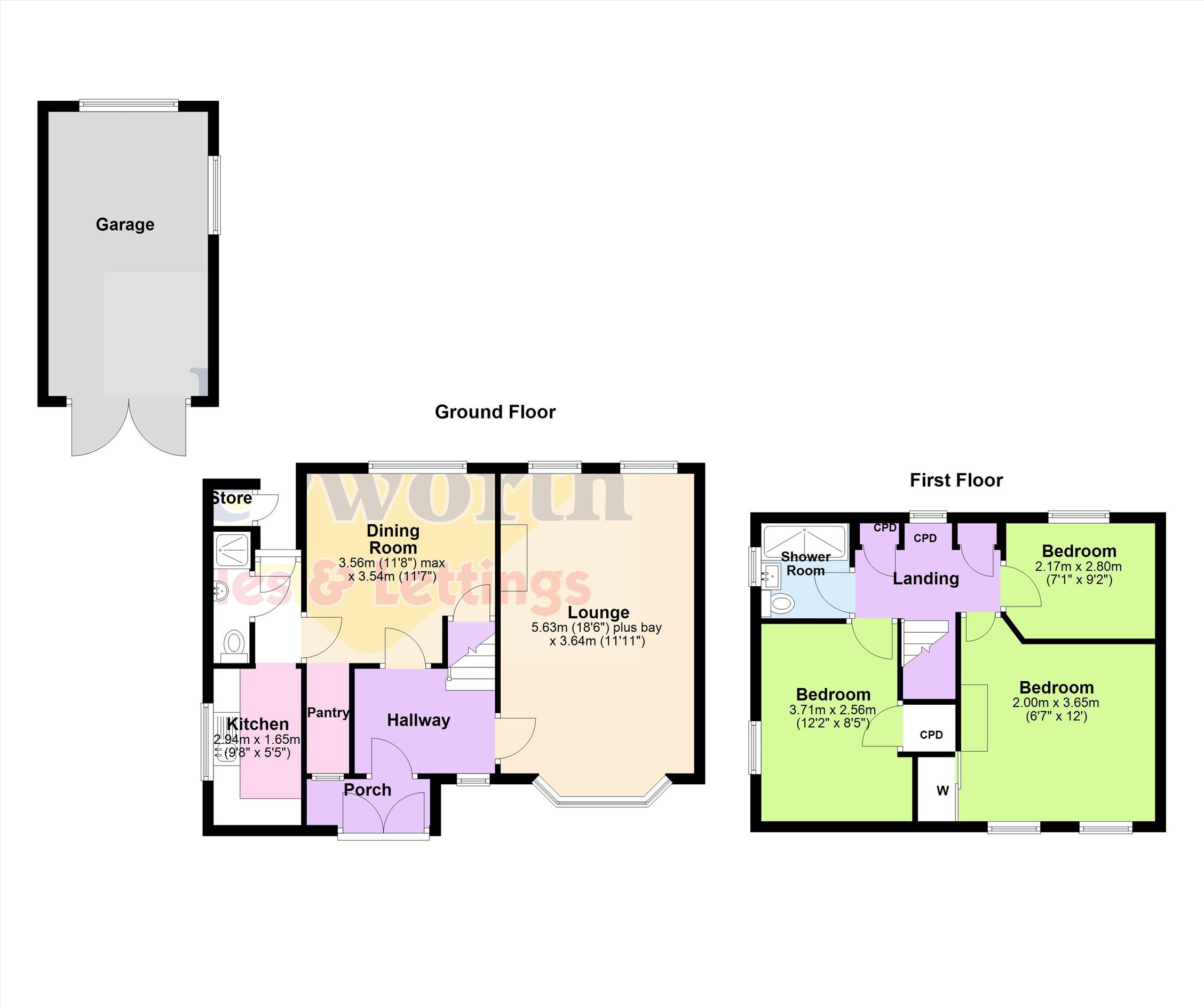
A well-presented semi-detached home set in a quiet cul-de-sac within a sought-after South Lancaster residential area. Occupying a generous plot, the property enjoys laid-to-lawn gardens to both the front and rear, with local amenities including schools, shops and bus routes all within easy reach. The spacious accommodation is ideal for a growing family and briefly comprises: entrance porch, hallway, two well-proportioned reception rooms, kitchen and a ground-floor shower room. To the first floor are three bedrooms and a stylish three-piece shower room. Externally, the property benefits from off-road driveway parking, a detached garage and a larger-than-average rear garden with patio and fire pit—perfect for outdoor dining and entertaining. Internal viewing is highly recommended.

Tenure : Freehold
Council Tax Band : D
EPC Current :60 / EPC Potential :80

Agent Note

In order to purchase a property in the UK, all estate agents are legally required to conduct identity checks on everyone involved in the transaction, in line with anti-money laundering regulations. Farrell Heyworth outsource this process to a trusted third party, and a non-refundable charge will apply. Please contact your local branch for further details.

Ashford Close, Lancaster, LA1


People who viewed this property also viewed

£200,000
3 bed house
Scotforth Road, Lancaster
£365,000
3 bed detached house
Hastings Close, Thornton Cleveleys
£365,000
4 bed house
Ashfield Avenue, Lancaster
£367,500
3 bed house
The Cliffs, Morecambe