An accurate property valuation you can trust
We'll help you to find the value of your property, so you can find a buyer or tenant as soon as possible.
Enter your details below to book a professional appraisal.
Request a viewing
We're available to take your call until 5:00pm weekdays and 2pm on Saturdays.
Hall Lane, Leyland, PR25
ReducedKey Features
- **VIRTUAL VIEWING AVAILABLE. CLICK ON THE VIDEO TOUR ABOVE**
- Semi Detached Bungalow Close to Town Centre Amenities
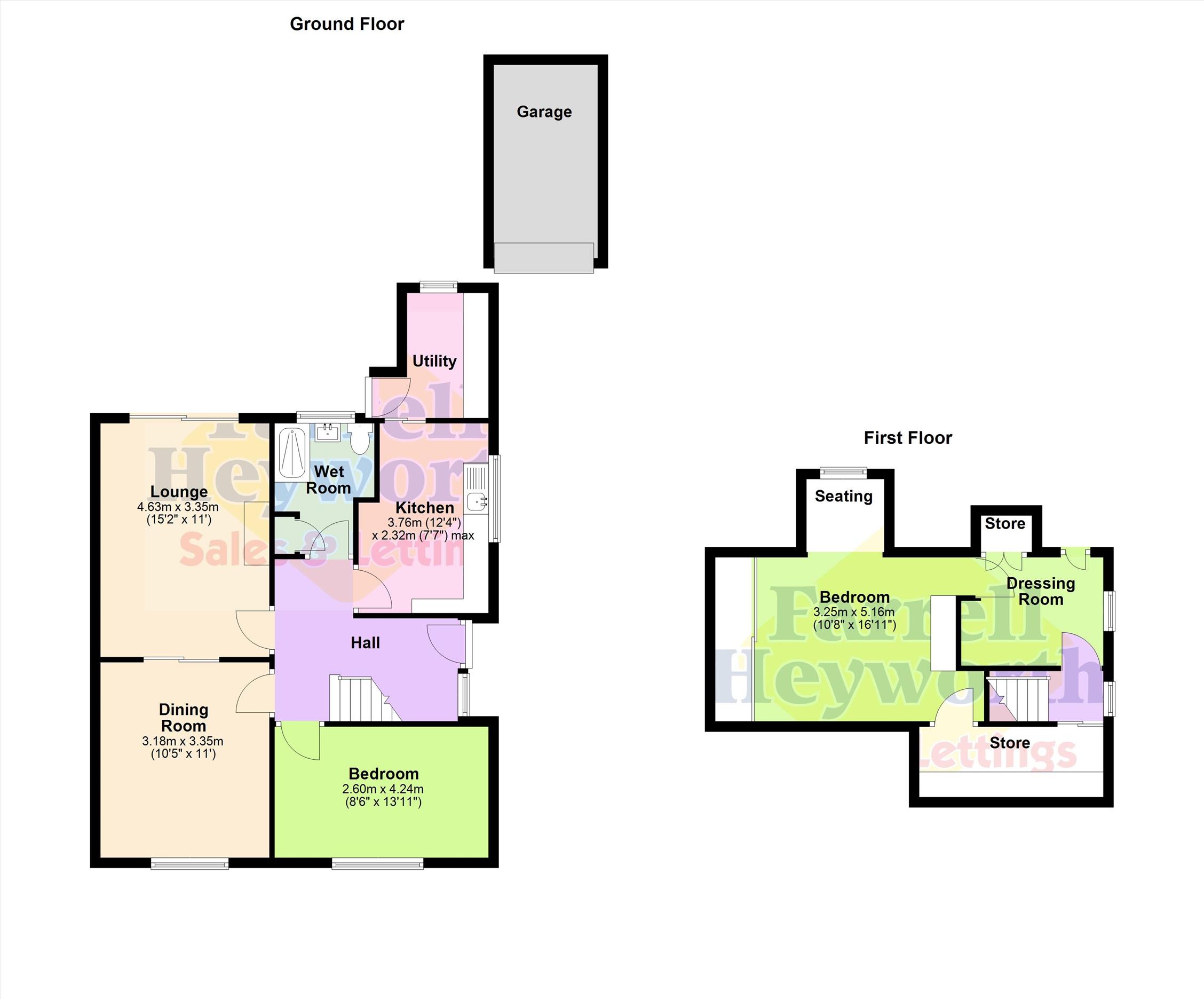
- Lounge, Dining Room, Kitchen, Utility and Wet Room
- Two/Three Bedrooms, Great Size Rear Garden
- Gardens Drive and Detached Garage, Ample Storage
Description
Great size semi detached bungalow in the heart of Leyland close to town centre amenities and leisure facilities, schools and park. The bungalow is situated on a popular and established residential road.
In brief the accommodation comprises; side entrance, hallway, dining room to the front with door to the lounge, kitchen, utility, ground floor wet room and second bedroom. The first floor comprises a main bedroom and a dressing room both having ample storage capability, main bedroom with wardrobes and side seating area, plus a passage way with eaves storage. (The first floor was originally one large bedroom which has been portioned to create a smaller room, currently used as a bedroom)
Externally to the front there is a garden area and side driveway leading to a detached garage and a great size rear garden.
This property offers superb potential and versatile accommodation which could be adapted to provide three bedrooms (subject to any necessary permissions and/or building regulation approval).
Tenure : Freehold
Council Tax Band : C
In order to purchase a property in the UK, all estate agents are legally required to conduct identity checks on everyone involved in the transaction, in line with anti-money laundering regulations. Farrell Heyworth outsource this process to a trusted third party, and a non-refundable charge will apply. Please contact your local branch for further details.
Hall Lane, Leyland, PR25
Interested in this property?
People who viewed this property also viewed