An accurate property valuation you can trust
We'll help you to find the value of your property, so you can find a buyer or tenant as soon as possible.
Enter your details below to book a professional appraisal.
Request a viewing
We're available to take your call until 5:00pm weekdays and 2pm on Saturdays.
Marine Road East, Morecambe, LA4
SOLD STCKey Features
- **VIRTUAL VIEWING AVAILABLE. CLICK ON THE VIDEO TOUR ABOVE**
- Two Bedroom Second Floor Apartment In Morecambe with Sea Views
- Spacious Lounge with Great Views, Modern Kitchen, Bathroom
- Two Bedrooms, En Suite to Master, Great Seafront Location
- Close to Local Shops, Schools, Transport Links & Coastal Walks
Description
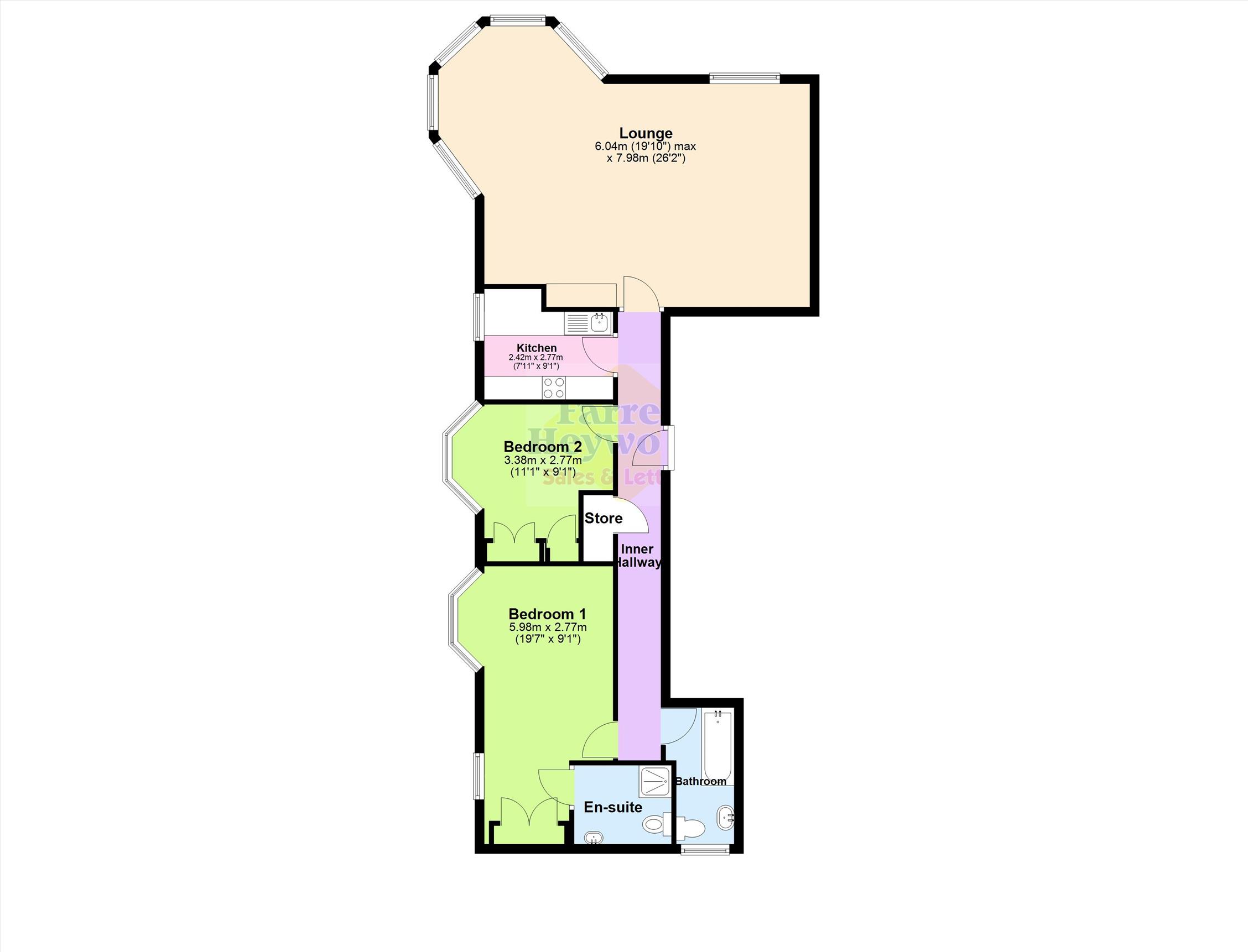
Fantastic opportunity to purchase this two bedroom, second floor apartment, the property is ready to move into and is situated on Morecambe promenade with great views over the Bay.
On internal inspection the property briefly comprises; entrance hallway, inner hallway, spacious lounge, modern kitchen, bathroom and two bedrooms with en-suite to bedroom one.
The apartment also benefits from lift access and allocated parking to the rear. Each apartment has its own small storage room located on the lower ground floor.
Viewings are highly recommended to appreciate this superb property on offer.
Tenure : Leasehold
Council Tax Band : D
In order to purchase a property in the UK, all estate agents are legally required to conduct identity checks on everyone involved in the transaction, in line with anti-money laundering regulations. Farrell Heyworth outsource this process to a trusted third party, and a non-refundable charge will apply. Please contact your local branch for further details.
Marine Road East, Morecambe, LA4
Interested in this property?
People who viewed this property also viewed