An accurate property valuation you can trust
We'll help you to find the value of your property, so you can find a buyer or tenant as soon as possible.
Enter your details below to book a professional appraisal.
Request a viewing
We're available to take your call until 5:00pm weekdays and 2pm on Saturdays.
Parkside, Westgate, Morecambe, LA4
ReducedKey Features
- **VIRTUAL VIEWING AVAILABLE. CLICK ON THE VIDEO TOUR ABOVE**
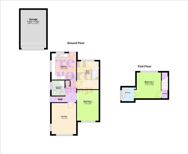
- Two Bedroom Semi-Detached Dormer Bungalow
- Reception Room, Kitchen, Dining Room and Ground Floor Shower
- Master Bedroom with En-Suite Toilet and Sink
- Rear Garden, Driveway and Garage in Central Morecambe
Description
Introducing a two bedroom semi-detached modern dormer bungalow set in a central Morecambe close, perfectly placed for access to local shops and amenities.
The property offers a reception room, fitted kitchen and dining room, along with a ground floor shower room and bedroom.
On the first floor, the master bedroom benefits from its own en-suite toilet and sink, providing additional convenience.
Externally, this home features a rear garden, driveway and garage, making it practical as well as appealing. While the property is in need of some TLC, it presents a fantastic opportunity to create a comfortable and modernised home in a sought-after location.
Please Note: It is our understanding that the loft conversion may have been undertaken and completed without obtaining planning consent/ building regulation approval and all prospective purchasers should rely upon their own enquiries and investigations as to the permitted and practicable use of this area.
Tenure : Freehold
Council Tax Band : B
In order to purchase a property in the UK, all estate agents are legally required to conduct identity checks on everyone involved in the transaction, in line with anti-money laundering regulations. Farrell Heyworth outsource this process to a trusted third party, and a non-refundable charge will apply. Please contact your local branch for further details.
Parkside, Westgate, Morecambe, LA4
Interested in this property?
People who viewed this property also viewed