
An accurate property valuation you can trust
We'll help you to find the value of your property, so you can find a buyer or tenant as soon as possible.
Enter your details below to book a professional appraisal.
Request a viewing
We're available to take your call until 5:00pm weekdays and 2pm on Saturdays.
Fieldside Close, Lostock Hall, Preston, PR5
Key Features
- **VIRTUAL VIEWING AVAILABLE. CLICK ON THE VIDEO TOUR ABOVE**
- Most Deceptively Sized Modern Detached House
- Four/Five Bedrooms, Great Sized Open Plan Living Area
- Cul De Sac Location, Garage, Ground Floor WC
- Ideal Family Home in an Ever Popular Residential Location
Description
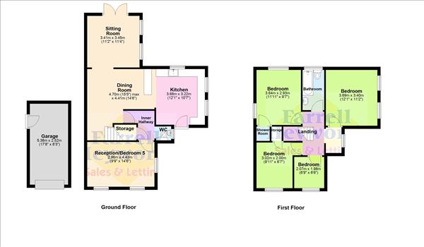
Situated at the head of a cul de sac in an ever popular residential location, internal inspection is absolutely essential in order to appreciate the size and layout of accommodation to be found inside this deceptive modern detached house, ideal for the growing family.
Comprises: Great sized kitchen and open plan living area incorporating a dining room and sitting room, inner hallway, separate wc and further reception room/bedroom five.
To the first floor, there are four bedrooms and a three piece bathroom suite.
Externally, there is a garage and enclosed lawned rear garden plus side patio area.
A generously proportioned property that comes highly recommended.
Tenure : Freehold
Council Tax Band : D
In order to purchase a property in the UK, all estate agents are legally required to conduct identity checks on everyone involved in the transaction, in line with anti-money laundering regulations. Farrell Heyworth outsource this process to a trusted third party, and a non-refundable charge will apply. Please contact your local branch for further details.
Fieldside Close, Lostock Hall, Preston, PR5
Interested in this property?
People who viewed this property also viewed



