Green Lane, Catforth, Preston, PR4

£340,000
House
1 Bath
Car Parking
1 Reception
3 Bed

Key Features

  • **VIRTUAL VIEWING AVAILABLE. CLICK ON THE VIDEO TOUR ABOVE**
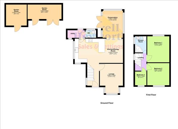
  • Three Bedroom Semi-Detached Family Home In Great Rural Location
  • Welcoming Lounge With Log Burner, Open Plan Kitchen/Dining Space
  • Shower Room, Utility, Conservatory, Ground Floor WC
  • Side & Rear Gardens, Fantastic Rural Setting, Call Now To View!

Description

Situated in a fantastic rural setting in the sought-after village of Catforth near Preston, this impressive three bedroom semi-detached family home offers the perfect blend of countryside charm and modern living. The heart of the home features a welcoming lounge complete with a cosy log burner, leading through to a spacious open plan kitchen and dining area ideal for entertaining. The ground floor also benefits from a bright conservatory, a practical utility room, and a convenient downstairs WC. Upstairs, you will find three well proportioned bedrooms and a modern shower room. Externally, the property boasts generous side and rear gardens that make the most of the peaceful surroundings. This is an opportunity not to be missed, call Farrell Heyworth today to arrange your viewing!

Tenure : Freehold
Council Tax Band : C
EPC Current :0 / EPC Potential :0

Agent Note

In order to purchase a property in the UK, all estate agents are legally required to conduct identity checks on everyone involved in the transaction, in line with anti-money laundering regulations. Farrell Heyworth outsource this process to a trusted third party, and a non-refundable charge will apply. Please contact your local branch for further details.

Green Lane, Catforth, Preston, PR4


People who viewed this property also viewed

£339,995
3 bed bungalow
Stafford Avenue, Poulton Le Fylde
£340,000
3 bed house
Lichfield Avenue, Morecambe
£340,000
4 bed house
Bakewell Close, Preston
£340,000
4 bed bungalow
Fairmont Drive, Poulton Le Fylde