An accurate property valuation you can trust
We'll help you to find the value of your property, so you can find a buyer or tenant as soon as possible.
Enter your details below to book a professional appraisal.
Request a viewing
We're available to take your call until 5:00pm weekdays and 2pm on Saturdays.
Riverside, Preston, PR1
Key Features
- **VIRTUAL VIEWING AVAILABLE. CLICK ON THE VIDEO TOUR ABOVE**
- Bay Fronted Character Home Directly Overlooking River Ribble
- Lots of Original Features, Very Flexible Living Arrangement
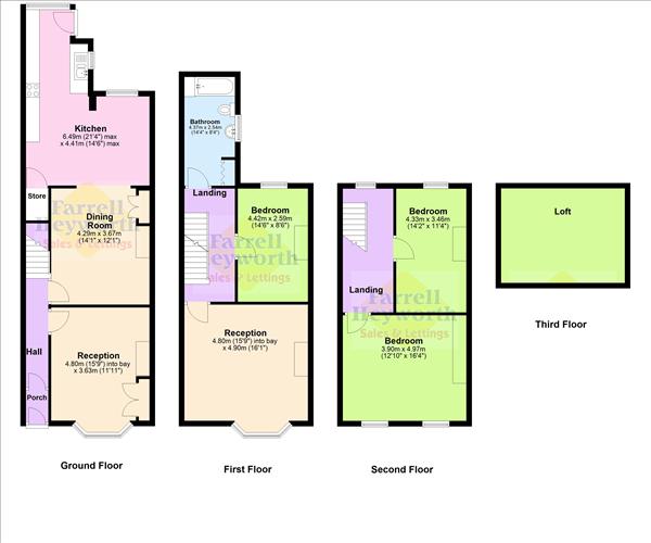
- Hall, Study, Dining Room, Breakfast Kitchen, 3 or 4 Bedrooms
- 2 or 3 Receptions, Bathroom, Two Parking Spaces, Great Location
Description
A characterful three storey bay fronted traditional terrace, set in a superb position directly overlooking the River Ribble. The riverside aspect is the defining feature here, giving the home a calm, open outlook while still placing you within easy reach of Preston city centre.
Accommodation over three floors, ideal for families, home-workers, or anyone wanting extra space.
Bay-fronted façade that enhances natural light and adds classic period charm.
Three or four bedrooms, depending on how you choose to use the upper floors.
Two or three reception rooms, offering flexibility for living, dining, office, or hobby spaces.
Direct river views, creating a rare blend of urban convenience and natural tranquillity.
Traditional period details typical of Riverside’s historic terraces.
Riverside is known for its peaceful outlook and easy access to the city.
From the front rooms, you can enjoy uninterrupted views of the river, while still being just a short walk from Preston’s shops, transport links, and amenities.
In brief the accommodation comprises entrance hallway, front study/office, dining room L shape breakfast kitchen, yard to rear with access to the two parking spaces, the first floor comprises of lounge (or additional bedroom) bedroom and great size bathroom, the second floor has two additional bedrooms including the master bedroom.
Properties in this stretch are admired for their character and strong sense of place, the property is spacious, character-rich home offering flexible accommodation across three floors and a standout riverside position. With its period charm, generous room proportions, and enviable outlook, it’s an appealing opportunity for buyers seeking both lifestyle and convenience in one of Preston’s most distinctive locations.
Tenure : Freehold
Council Tax Band : C
In order to purchase a property in the UK, all estate agents are legally required to conduct identity checks on everyone involved in the transaction, in line with anti-money laundering regulations. Farrell Heyworth outsource this process to a trusted third party, and a non-refundable charge will apply. Please contact your local branch for further details.
Riverside, Preston, PR1
Interested in this property?
People who viewed this property also viewed