An accurate property valuation you can trust
We'll help you to find the value of your property, so you can find a buyer or tenant as soon as possible.
Enter your details below to book a professional appraisal.
Request a viewing
We're available to take your call until 5:00pm weekdays and 2pm on Saturdays.
Watery Lane, Ashton On Ribble, Preston, PR2
Key Features
- **VIRTUAL VIEWING AVAILABLE. CLICK ON THE VIDEO TOUR ABOVE**
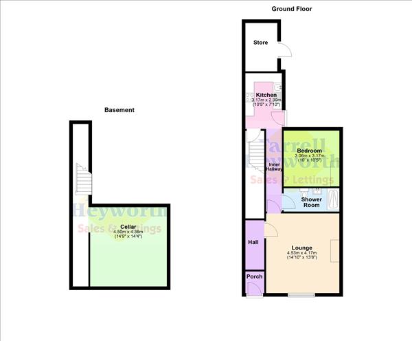
- Recently Modernised & Improved Ground Floor Apartment
- One Bedroom, Lovely Fitted Kitchen & Shower Room
- Useful Basement Storage, Rear Yard & Store
- Convenient Location, Great Starter Home/Investor Opportunity
Description
Ideal for those looking to take their first steps onto the property ladder or seeking an investment opportunity, internal inspection of this recently modernised and improved ground floor apartment is a must.
Comprises: Communal vestibule and hallway, lounge, inner hallway, stylish three piece shower room, bedroom, lovely fitted kitchen and stairs leading to a useful cellar area.
To the rear, there is an enclosed yard and store.
Well presented, ready to walk into and highly recommended. This is a great opportunity for an investor to own two ready to move into apartments.
Please Note: We are also marketing the first floor apartment. The two properties are currently on one freehold title and if purchased separately new leasehold titles will be registered, details TBC.
This is a great opportunity for an investor to own two ready to move into apartments.
Tenure : To be confirmed
Council Tax Band : A
In order to purchase a property in the UK, all estate agents are legally required to conduct identity checks on everyone involved in the transaction, in line with anti-money laundering regulations. Farrell Heyworth outsource this process to a trusted third party, and a non-refundable charge will apply. Please contact your local branch for further details.
Watery Lane, Ashton On Ribble, Preston, PR2
Interested in this property?
People who viewed this property also viewed