An accurate property valuation you can trust
We'll help you to find the value of your property, so you can find a buyer or tenant as soon as possible.
Enter your details below to book a professional appraisal.
Request a viewing
We're available to take your call until 5:00pm weekdays and 2pm on Saturdays.
Sail Street, Ulverston, Cumbria, LA12
Key Features
- ** BUYER WILL RECEIVE £10,000 TOWARDS STAMP DUTY **
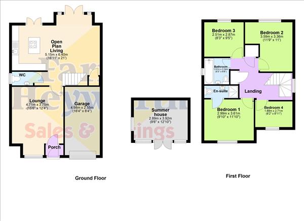
- Modern Detached Four Bedroom Family Home In Ulverston
- Spacious Lounge, Open Plan Kitchen & Dining Area, WC
- Four Bedrooms, En Suite To Master, Family Bathroom.
- Driveway, Front & Rear Gardens, Garage, Great Location!
Description
We are pleased to present to the market this stunning, spacious, beautifully appointed four bedroom detached family home positioned in a quiet cul-de-sac in Ulverston.
Internally, the accommodation comprises, a spacious lounge, an open plan family kitchen and dining space and a ground floor WC. To the first floor are four bedrooms with en-suite to the master and a family bathroom.
The property is set on a substantial plot with a well maintained rear garden, driveway and garage.
£10,000 towards Stamp Duty.
Tenure : Freehold
Council Tax Band : E
In order to purchase a property in the UK, all estate agents are legally required to conduct identity checks on everyone involved in the transaction, in line with anti-money laundering regulations. Farrell Heyworth outsource this process to a trusted third party, and a non-refundable charge will apply. Please contact your local branch for further details.
Sail Street, Ulverston, Cumbria, LA12
Interested in this property?
People who viewed this property also viewed