An accurate property valuation you can trust
We'll help you to find the value of your property, so you can find a buyer or tenant as soon as possible.
Enter your details below to book a professional appraisal.
Request a viewing
We're available to take your call until 5:00pm weekdays and 2pm on Saturdays.
Higher Greenfield, Ingol, Preston, PR2
NewKey Features
- **VIRTUAL VIEWING AVAILABLE. CLICK ON THE VIDEO TOUR ABOVE**
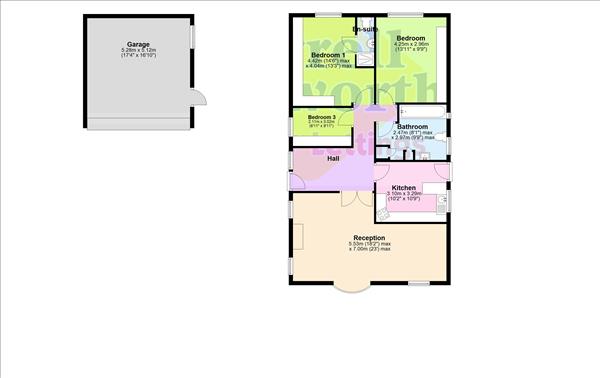
- Exceptionally Well Maintained Detached True Bungalow
- Situated on Established Residential Cul De Sac with No Chain
- Hall, Open Plan Lounge Diner, Modern Kitchen & Bathroom
- Gardens Front & Rear, Driveway and Remote Control Garage
Description
Exceptionally well maintained detached true bungalow in a small Cul De Sac of similar residential dwellings. The area is well regarded and has good commuter links and the property is offered for sale with no onward chain delay.
The light and airy accommodation comprises of side entrance to hallway, to the front elevation is an open plan lounge/dining/ family L shape reception with four windows for added light and feature fireplace, there is a modern fitted kitchen, three bedrooms with two being great size doubles and all having fitted wardrobes and a modern bathroom suite, and en-suite to the master bedroom.
Externally to the front is a garden area and great size driveway for multiple cars with a ample size garage with remote control access and a enclosed private rear garden.
Tenure : Freehold
Council Tax Band : D
In order to purchase a property in the UK, all estate agents are legally required to conduct identity checks on everyone involved in the transaction, in line with anti-money laundering regulations. Farrell Heyworth outsource this process to a trusted third party, and a non-refundable charge will apply. Please contact your local branch for further details.
Higher Greenfield, Ingol, Preston, PR2
Interested in this property?
People who viewed this property also viewed